Contact
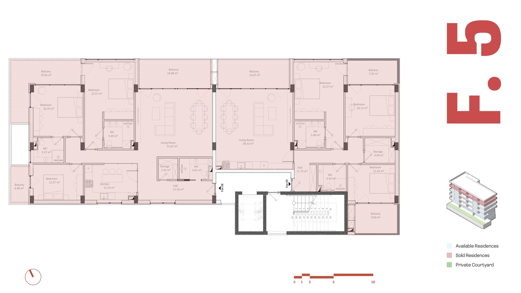
Floor
Top-floor penthouses with the largest interiors and panoramic balconies.
Hover and click any apartment to see its details
4 bedrooms · 133.45 m² residential area
Total: 167.71 m²
3 bedrooms · 115.59 m² residential area
Total: 146.07 m²